ПСЛН 1,8-6,1-111

Чертеж изделия:
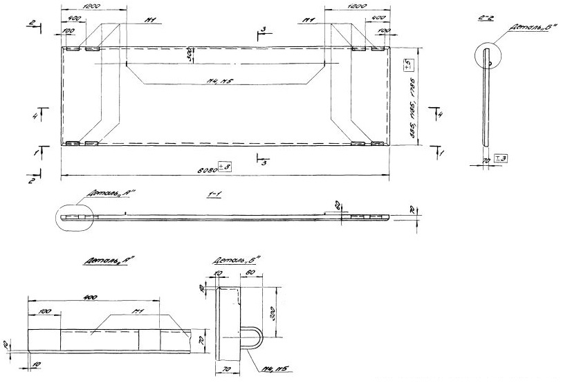
Чертеж ПСЛН 1,8-6,1-111
Характеристики изделия:
ПараметрЗначение
Длина6080 мм
Ширина70 мм
Высота1785 мм
Масса1150 кг
Нормативный документСерия 1.432-10

Сборные предварительно напряженные стеновые панели из легких бетонов для неотапливаемых промышленных зданий по Серии 1.432-10.

ПСЛН 1,8-6,1-111  Рядовая панель у температурного шва и в углу зданий по продольной стене, армированная сталью Вр-II.