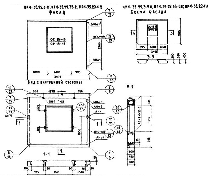
НР4-35.29.3-2л

Чертеж изделия:
Чертеж НР4-35.29.3-2л
Характеристики изделия:
ПараметрЗначение
Длина3495 мм
Ширина300 мм
Высота2900 мм
Масса3270 кг
Нормативный документСерия 1.132-1

НР4-35.29.3-2л   Наружная стеновая панель рядовая по Серии 1.132-1.